
Видео:
Функционална, надежна, хубава 3-етажна къща с площ 318 кв. м. и двор 520 кв. м. Без комисион от купувача!
Къщата е след основен ремонт, кой е изпълнен с много качествени материали. Инсталирани много качествени уреди.
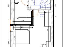
1 етаж:
трапезария - 15 кв. м.
кухня - 10 кв. м.
механа - 21 кв. м.
гардероб - 7 кв. м.
спалня - 10 кв. м.
баня с тоалетна - 4 кв. м.
2 етаж:
кабинет 12 кв. м.
хол 18 кв. м.
спалня 13,5 кв. м.
спалня 11 кв. м.
гардероб 11 кв. м.
баня с тоалетна - 5 кв. м.
3 етаж:
спалня 9,6 кв. м. + стая с камина 13 кв. м.
спалня 17 кв. м.
килер 13 кв. м.
Баня с тоалетна 4 кв. м.
Хубав поддържан двор 520 кв. м.
Градината е озеленена и поддържана, пейки, почивни зони, барбекю, тераса.
Гараж 18 кв. м., допълнително паркомясто в двора.
Инженерная инфраструктура напълно поновена:
Отопление - котле на пелети
Соларни панели на покрива
Климатици
Интернет
Окабеляване.
В двора има допълнителни стопански постройки
Локация: 350 м. до морето, близо до ресторанти, магазини, поща, училище, фризьорски салони…
Къща продава се с обзавеждане, както е на снимките.
В посочена цена на имота не са включени мебели в бяла спалня и в механа (снимки).
Къща и земя са регистрирани на юридическо лице, което може да бъде продадено заедно с имота.
Оферта 0304, агенция RealtyArtHouse.
Информация и огледи: Лариса Николаева
